3-D Reality Capture

This technique allows us to replicate the built environment virtually, by employing state-of-the-art laser scanners or camera mounted UAV’s in a safe, non-contact fashion onsite, while offsite post-processing applications assist in developing life-like models with extreme detail and accuracy.

3-D ~ BIM Documentation

Our Building Information Models are created to your standards, and to the Level of Documentation appropriate for a given project.  Models are developed and delivered in the industry's most widely used applications and formats.

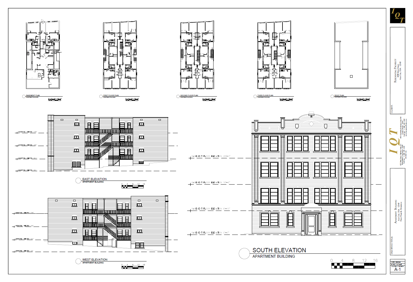
2-D ~ CAD Documentation

Our Architectural Floor, Exterior Elevation & Roof and Section Plans are created to your standards, and to the Level of Documentation appropriate for a given project.  Floor Plans may be Enhanced with the depiction of any Mechanical, Electrical, Plumbing and Life Safety components.  Plans are developed and delivered in the industry's most widely used applications and formats.

Area Analysis

A byproduct of accurate building measurement is the ability to perform an Area Analysis of the property.  As square footage is a key component in any real estate transaction, you will be assured that we can provide an unbiased account of the space which adheres to your desired industry standard.  If you are a building owner that is looking to sell, lease or rent a property, and are looking to maximize value, or are a prospective buyer looking to verify a building’s rentable area as part of a due diligence process, then we can be an instrumental partner in this endeavor.

Evacuation Plans

A byproduct of accurate building floor plans is the ability to produce Evacuation Plans which depict and detail egress in the event of an incident of concern.  As a key component of any Emergency Action Plan, Evacuation Plans provide a simplified yet clear and concise mapping of primary and secondary exits, life safety equipment, location of hazardous materials and associated guidance during an emergency situation.  Allow us to assist you in providing the information necessary to insure the safety of your building occupants.